Dokumentation von Unterrichtsprojekten „Architektur macht Schule“
Schulart und Klassenstufe: Bildungshaus Hausen, pädagogischer Verbund
• Maria Montessori Grundschule Hausen Stufe 1-4, Jahrgangsmischung
• Tageseinrichtung für Kinder Hausenring 32
• Tageseinrichtung für Kinder beim Fasanengarten 11
• Tageseinrichtung für Kinder beim Fasanengarten 43
• Kinder und Jugendhaus Hausen
Unterstützung bei der Herstellung der Keramiken durch die Fachschule für Farbe und Gestaltung Stuttgart-Feuerbach
Bildungsplan: Gemeinsames Projekt der Schule, der Kindertagesstätten und des Jugendhauses auf dem Gelände der Schule, der Schulhof als integrierender Bildungs-, Lernort und Aufenthaltsort.
Beteiligte: Es haben alle Kinder der Schule, Vorschulkinder der Tageseinrichtungen, Jugendlichen des Jugendhauses, Lehrer und Erzieherinnen,viele Eltern sowie Freunde an der Herstellung des Pavillons teilgenommen.
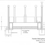
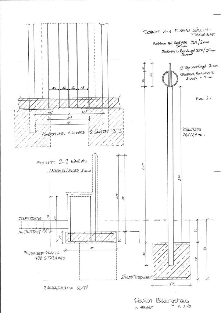
Projektbeschreibung: Es sollte ein kleiner Pavillon entstehen, der für etwa 20 Kinder Platz bietet. Acht Säulen aus keramischen Rohrstücken tragen eine Kuppel aus Stahlstäben. Kapitelle aus mosaizierten Kugeln verbinden diese beiden Bauteile miteinander. Die Kuppel wird im Laufe der kommenden Jahre von Waldreben überwachsen und bietet dadurch im Sommer Schatten. In die Reihe der Säulen werden Sitzbänke mit Rückenlehnen eingebaut. Diese bestehen aus einem feinen Stahlgewebe, das mit Zementmörtel beworfen und geglättet wird. Die Oberfläche wird aus keramischen Fliesen hergestellt. Der Fußboden besteht aus Kleinmosaikpflaster.
Alle Bauteile mit Ausnahme der Fundamente, wurden von den Kindern aller beteiligten Einrichtungen unter Anleitung und Mitwirkung des Architekten im Laufe eines Schuljahres hergestellt. Die Fundamente wurden von einem Bauunternehmer hergestellt. Beim Bau der Sitzbänke und der Rohrstücke der Säulen halfen die Eltern mit. Die Kuppel aus Baustahlstäben wurde von den Jugendlichen und den Betreuern des Jugendhauses hergestellt.
Die künstlerische Ausgestaltung der keramischen Oberflächen wird geprägt durch das gestalterische Engagement der Kinder, die unter Anleitung ihrer LehrerInnen, bzw. ErzieherInnen verschiedene Themen erarbeiteten. Z. B. Tiere des Waldes und ihre Spuren, oder geometrische und graphische Strukturen, oder verschiedene Stempeltechniken, oder Einprägungen von Elementen aus dem nahen Schul- und Wohnumfeld. Zur farblichen Gestaltung gab es einen Vorschlag des Künstlers. Die Kinder hatten ihre eigenen Vorstellungen, die im weiteren Verlauf des Projektes eingeflossen sind.
Alle Kinder und LehrerInnen der Schule selbst hatten durch vorbereitende Arbeiten mit Ton und Keramikherstellung Vorerfahrungen mit dieser künstlerischen Technik. Bilder zu Pavillons und eine kleine Bibliothek zum Thema „maurischer Stil“ wurden vom Architekten zur Verfügung gestellt.
Zeitlicher Umfang: 28.09.2013 Projektstart zum Künstlermarkt an der Montessorischule
Bis Juli 2014 Vorfertigung der Keramiken in den Werkstätten der Montessorischule und der Fachschule für Farbe und Gestaltung
Spätherbst 2014 Fertigstellung
Ostern 2015 Einweihung
Ziele: Das Projekt diente vor allem dem Zusammenfinden der Schule, der Tageseinrichtungen und des Jugendhauses zum pädagogischen Verbund des Bildungshauses Hausen. Neben den Kindern, die 480 einzeln gestaltete Keramiken herstellten, haben auch die Eltern in vielen Stunden zum Gelingen beigetragen und wurden somit zu einem wesentlichen Teil des Bildungshauses.
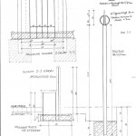
Material und Werkzeug: Schablonen 1:1 aus Wediplatten 20 mm für Fundamente aus Beton, eingebaute Stahlrohre 89mm, Anschlußeisen für Sitzbänke
Sitzbänke aus Baustahl und Sechseckgeflecht mit Zementmörtel verputzt.
Ca. 200 kg Ton für Keramik, Tonbearbeitungswerkzeuge, PVC-Abwasserrohe und Silikonkartuschen zum „Überwerfen“ der Tonplatten, Kachelstecher, verschiedene Materialien zum „Stempeln“,
Glasuren, Brennofen bis 1260° C
Styroporhalbschalen mit eingepasstem Stahlrohr, mit Beton gefüllt,
Glasmosaike auf Glasfasergewebe, Flexkleber und Flexfuge
Mörtelwannen, Eimer, Kellen, Spachteln, Becher, Schwämme, Lappen…
Baurippenstahl 8 mm für Kuppel
Einstieg/Transfer: Ton- und Keramikkurs für teilnehmende Pädagogen/Erzieherinnen im Vorfeld Präsentation des Projektes beim Künstlermarkt, erste Keramiken
Große Infotafel in der Schulaula mit aktuellen Tagebuchblättern über Projektfortschritte, Teilnehmerlisten
Broschüre über die Themen „Pavillon“ und „Maurischer Stil“
Infos über Projektfortschritte in regelmäßigen Rundmails
Richtfest beim Sommerfest, Präsentation der Zwischenergebnisse
Unterrichtsergebnis / Werke / Produkt siehe Fotos
Hinweise/Feedback: Der “Maurische Stil” entwickelte sich seit der islamischen Eroberung der iberischen Halbinsel ab dem 8. Jh. in Südspanien. Das von den Mauren beherrschte Al-Andalus, insbesondere die Emirate von Córdoba und Granada erreichten bis ins 14.Jh. eine Blüte an Kunst, Kultur und Wissenschaft.
Diese Zeit wird auch Goldenes Zeitalter des Zusammenlebens der islamischen, jüdischen und christlichen Kultur bezeichnet. Zu weiteren Wesenszügen des maurischen Stils gehören das Ineinanderfließen von Bau- und Dekorformen, die dadurch bewirkte Entmaterialisierung und mehrfache Lesbarkeit der Formen. Wir interpretieren diesen Stil neu, indem wir die Vielfalt der Menschen in unserem Stadtteil sich wiederspiegeln lassen in den bunten Oberflächen der 480 individuell gestalteten Kacheln, pflanzenähnlichen Säulen und bunten Mosaikkugeln unseres Pavillons.
Der Pavillon im maurischen Stil ist eine Gemeinschaftsarbeit der wesentlichen sozialen Einrichtungen des Stuttgarter Stadtteils Hausen. Die Kinder der Tageseinrichtungen sowie die SchülerInnen der Montessorischule stellten 480 individuell gestaltete Fliesen her. Die Eltern übernahmen die Herstellung der gebogenen Keramiken und der Keramikrohre für die Säulen. Die Mosaikkugeln fertigten Mütter aus dem Kurs “Mama lernt Deutsch”. Die Konstruktion des Daches lag in der Verantwortung der Jugendhausleitung und der Jugendlichen. Das Geschaffene erhält somit bei allen Nutzern und Betrachtern einen hohen Stellenwert, der noch ausstrahlen wird, wenn viele Kinder schon nicht mehr im Bildungshaus Stuttgart-Hausen betreut werden. Er ist einerseits wünschenswerter Rückzugsort, ja eine Oase des Verweilens, andererseits bleibendes Zeichen gelungener Zusammenarbeit, Inklusion und Integration. Hier überwinden wir und lösen auf die Grenzen unseres sozialen, kulturellen und religiösen Erbes.
Eine Welt ohne Liebe ist eine Welt ohne Leben.
Wolfang Zaumseil


























